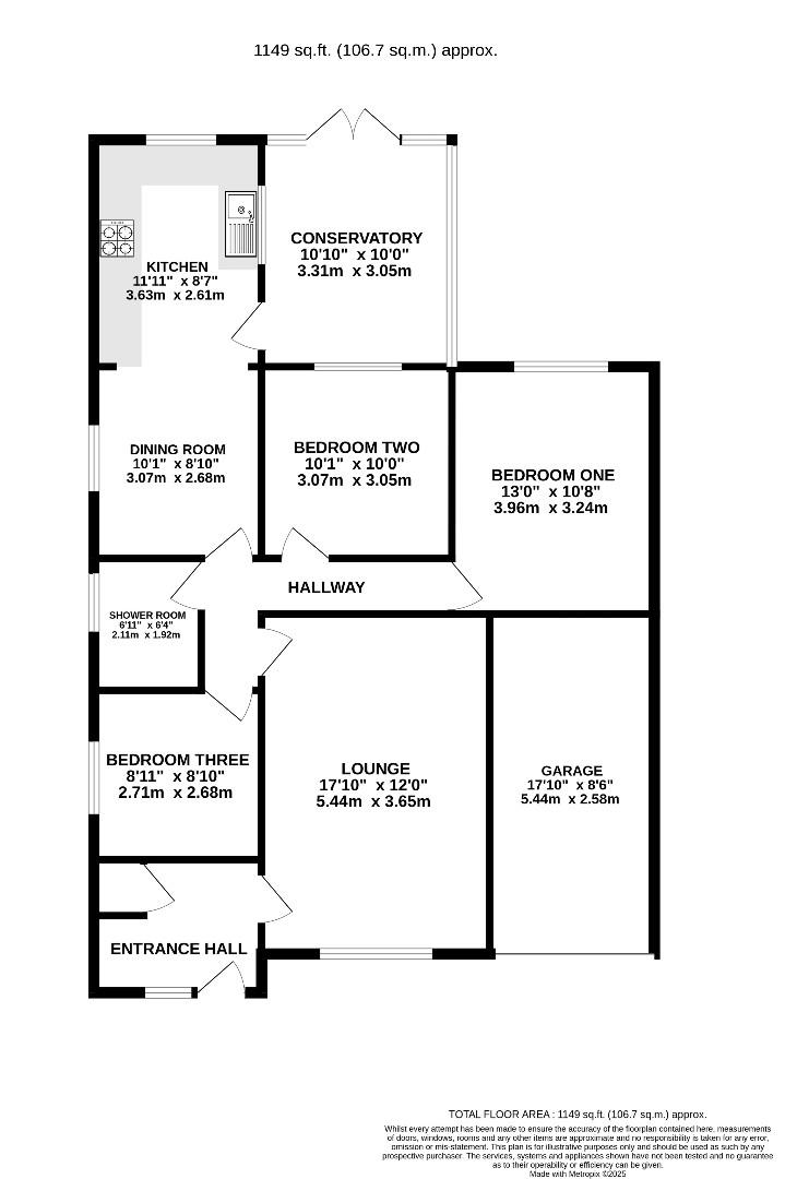
Situated in the popular village of Moulton, and benefitting from Davenham on its’ doorstep, this wonderful semi-detached bungalow offers a wealth of space throughout. Extending to just under 1150 SQFT of living accommodation, this three bedroom property is complimented by three reception rooms, garage, off road parking and landscaped private garden.
Key Features
- 1 Reception Room
- 3 Bedrooms
- 1 Bathroom
Eaton View, Moulton, Northwich
Situated in the popular village of Moulton, and benefitting from Davenham on its’ doorstep, this wonderful semi-detached bungalow offers a wealth of space throughout. Extending to just under 1150 SQFT of living accommodation, this three bedroom property is complimented by three reception rooms, garage, off road parking and landscaped private garden.
Floorplan
































Independent Estate Agents