LOCATION
Sandiway offers an excellent range of day-to-day amenities including the Blue Cap and White Barn public houses, newsagents, dry cleaners, bakery, butchers, pharmacy, and off licence in addition to De Fine Food Wine/Restaurant. There are also two primary schools, two Churches, Church Hall, village community centre, tennis courts, playing fields/park and a further row of shops. It should also be noted that within the village there is also a library, Doctors surgery and Dentist.
Cuddington Railway Station runs on the Chester to Manchester line and can be found within 5 - 10 minute’s walk.
Close by Northwich, provides a further extensive range of amenities including a number of supermarkets, multi-screen Odeon cinema, leisure complex including two swimming pools, huge range of gym equipment and classes caters for both fitness enthusiasts.
The area provides an excellent base for the business traveller with many commercial centres including Manchester, Chester, Liverpool, Warrington and Birmingham all being within commuting distance and Hartford Station is 8 minute’s drive away - this is on the Liverpool London line and only 15 minutes from Crewe. In addition, access points to the M6/M56, M53, A49 and A55 are all easily accessible. The property is also within 30-40 minute’s drive of Liverpool and Manchester International Airports.
IN FURTHER DETAILS THE ACCOMMODATION COMPRISES:-
Please note that we have not checked any of the appliances or the central heating system included in the sale (if any). All prospective purchasers should satisfy themselves on this point prior to entering the contract.
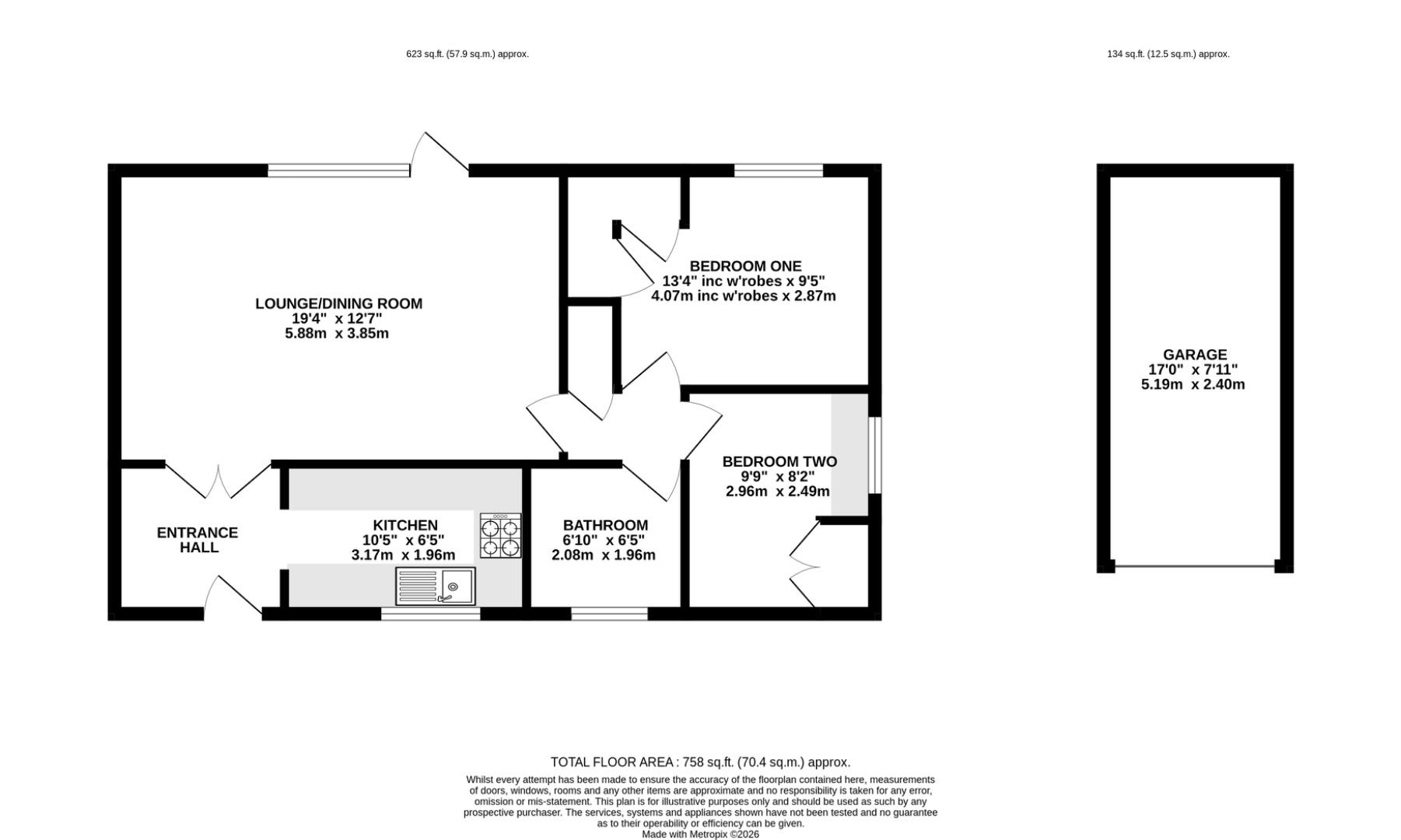
1 WATLING COURT
758 Sq.Ft.
GROUND FLOOR
Communal Entrance
Hallway
Kitchen
Lounge/Dining Room
Inner Hall
Bedroom One
Bedroom Two
Bathroom
OUTSIDE
Communal Gardens
1 Watling Court Garage
Garden Store
TENURE
Leasehold. 999 years with 979 years remaining. Subject to verification by Vendor's Solicitor.
SERVICES (NOT TESTED)
We believe that mains water, electricity, gas central heating and drainage are connected.
LOCAL AUTHORITY
1 Watling Court - Cheshire West And Chester Council. Council Tax – Band C.
POST CODE
CW8 2JT
POSSESSION
Vacant possession upon completion.
VIEWING
Viewing strictly by appointment through the Agents.



















Independent Estate Agents