Additional land maybe available via separate negotiation.
Cheshire East Council Planning Reference:- 24/3263N with Appeal Reference:- APP/R0660/W/25/3363280
LOCATION
Spurstow is quiet semi-rural hamlet and lies close to the popular villages of Bunbury and Tarporley.
Bunbury is a small, rural picturesque village that offers a range of local amenities with a convenience store, three public houses and a beautiful Church which dates back over 1000 years. There is also a cricket club, bowls club, tennis club and Medical Centre. Of particular note is Bunbury Primary School which enjoys a reputation for academic excellence. The Primary School also acts as a feeder into Tarporley High School which can be found 3 miles away.
Close by the award-winning village of Tarporley, is renowned for its Historic High Street which is located approximately 12 miles from Chester and offers a superb range of amenities including fashion boutiques, art galleries, DIY, florists, butcher, hairdressers, chemist, hospital, petrol station and other general stores. There is also a range of pleasant restaurants and public houses, which complete the thriving village. Additionally, Tarporley has the added benefit of two highly regarded Golf courses. Tarporley has its own two churches and both primary and secondary schools.
For wider amenities is the charming market town of Nantwich - set beside the River Weaver with a rich history, a wide range of speciality shops and 4 supermarkets. Nantwich in Bloom in November 2015 was delighted to have once again scooped the prestigious Gold award from the Britain in Bloom competition. In Cheshire, Nantwich is second only to Chester in its wealth of historic buildings. The High Street has many of the town's finest buildings, including the Queen's Aid House and The Crown Hotel built in 1585. Four major motorways which cross Cheshire ensure fast access to the key commercial centres of Britain and are linked to Nantwich by the A500 Link Road. Manchester Airport, one of Europe's busiest and fastest developing, is within a 45-minute drive of Spurstow. Frequent trains from Crewe railway station link Cheshire to London-Euston in only 1hr 40mins. Manchester and Liverpool offer alternative big city entertainment. Internationally famous football teams, theatres and concert halls are just some of the many attractions.
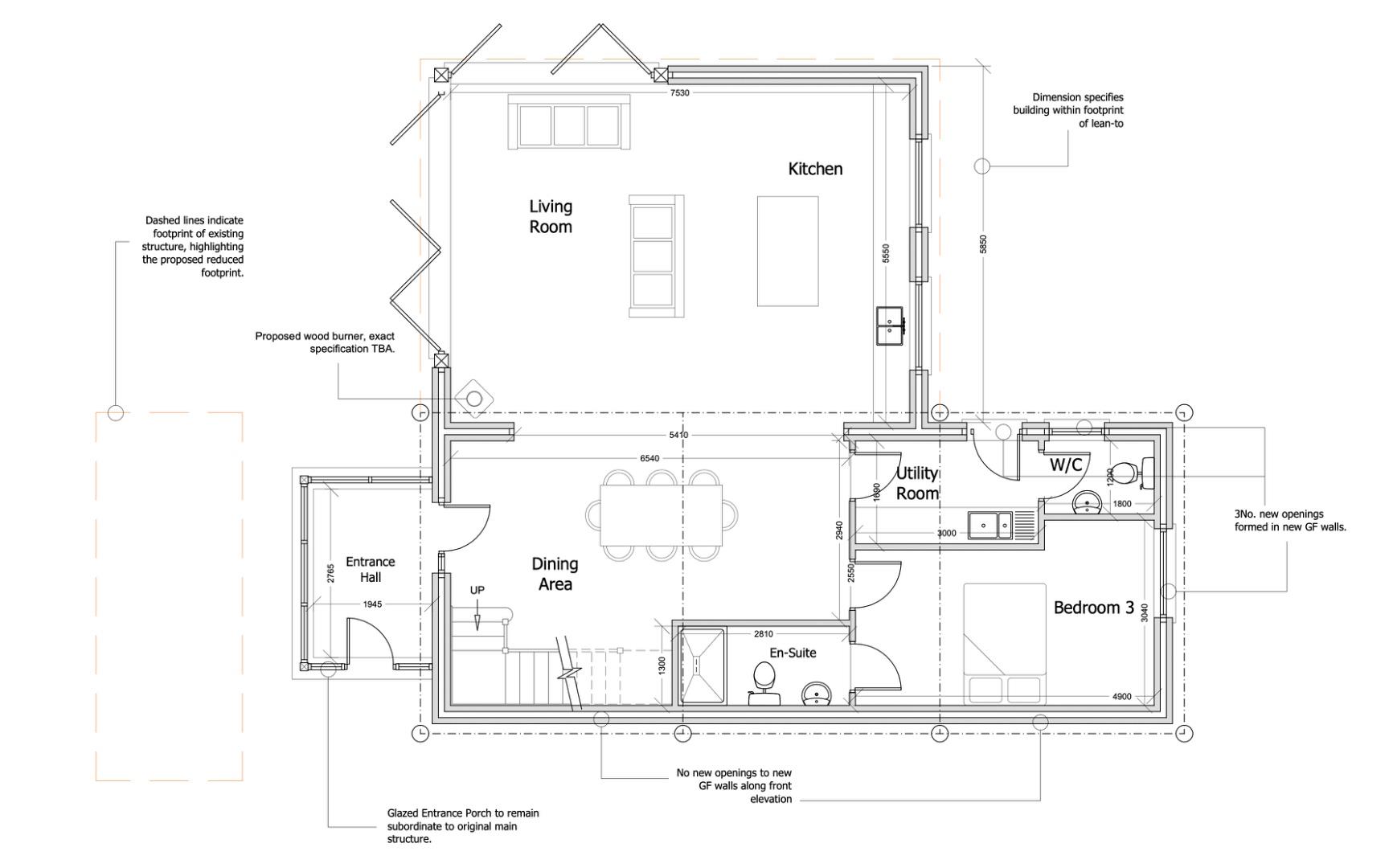
IN FURTHER DETAILS THE ACCOMMODATION COMPRISES:-
Please note that we have not checked any of the appliances or the central heating system included in the sale (if any). All prospective purchasers should satisfy themselves on this point prior to entering the contract.
INFORMATION
All CGI visuals, photography, floor plans, site plans and measurements shown are for illustration and guidance purposes only and may vary.
TENURE
Freehold. Subject to verification by Vendor's Solicitor.
LOCAL AUTHORITY
Cheshire East Council.
POST CODE
CW6 9TE
POSSESSION
Vacant possession upon completion.
VIEWING
Viewing strictly by appointment through the Agents.




Independent Estate Agents