LOCATION
The award-winning village of Tarporley, is renowned for its Historic High Street which is located approximately 12 miles from Chester and offers a superb range of amenities including fashion boutiques, art galleries, DIY, florists, hairdressers, chemist, hospital, petrol station, and other general stores. There is also a range of pleasant restaurants and public houses, which complete the thriving village. Additionally, Tarporley has the added benefit of two highly regarded Golf courses. Tarporley has its own two churches and both primary and secondary schools. There is easy access to the surrounding villages, motorway, and railway networks, which give access to the north and south of the UK.
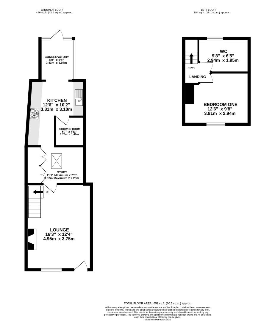
IN FURTHER DETAILS THE ACCOMMODATION COMPRISES:-
Please note that we have not checked any of the appliances or the central heating system included in the sale (if any). All prospective purchasers should satisfy themselves on this point prior to entering the contract.
GROUND FLOOR
Lounge
Study
Kitchen
Conservatory
Shower Room
FIRST FLOOR
Landing
Landing
Bedroom One
WC
OUTSIDE
Garden
TENURE
Freehold. Subject to verification by Vendor's Solicitor.
SERVICES (NOT TESTED)
We believe that mains water, electricity, gas fired central heating and drainage are connected.
LOCAL AUTHORITY
Cheshire West And Chester Council. Council Tax – Band B.
POST CODE
CW6 9UR
POSSESSION
Vacant possession upon completion.
VIEWING
Viewing strictly by appointment through the Agents.



















Independent Estate Agents