For Sale in Darnhall £325,000

1 3 1

Situated in a popular quiet location within close proximity to amenities, a well-presented detached bungalow with scope for modernisation, extension, and character features throughout. Beautifully landscaped private gardens, driveway providing off-road parking for several vehicles leading to the double garage.

Key Features

  • 1 Reception Room
  • 3 Bedrooms
  • 1 Bathroom

01829 730 021

Arrange a viewing Add to favourites Download PDF Brochure

Moors Lane, Darnhall

Situated in a popular quiet location within close proximity to amenities, a well-presented detached bungalow with scope for modernisation, extension, and character features throughout. Beautifully landscaped private gardens, driveway providing off-road parking for several vehicles leading to the double garage.

LOCATION

Darnhall is located close to Wettenhall which is a tranquil semi village that stands in a central location between the striking Georgian architecture of Tarporley village and the historic market town of Nantwich.

Wettenhall has its own public house, church, and equestrian centre.

For those with educational requirements, Calveley Primary School is found within two miles, and the highly regarded Tarporley High School is just four miles away. A further diverse selection of primary and secondary schools in both state and private sectors such as the renowned Grange Primary School and Secondary School in Hartford which are approximately 25 minute's drive away.

The nearby town of Winsford is home to a superb state of the art leisure centre and community facility including a gym, swimming pool, squash courts, cafe‚ bar and meeting rooms which host many fitness classes and activities for all ages. There is also a local football club, cricket club, Winsford Flash Sailing Club, and a nearby athletics club. The Winsford Flashes is very popular with walkers, anglers, and wildlife watchers alike.

Winsford has a nationally recognised award-winning Neighbourhood Plan, which was voted in by residents in a referendum. There is a good selection of supermarkets including, Tesco, Morrison’s, Asda, and Aldi as well as smaller convenience stores.

Winsford has ten primary and four secondary schools to choose from along with two sixth-form colleges. It also has several children’s day nurseries.

Further to this, ?excellent transport links including its own train station on the Liverpool to Birmingham main line and a very good bus network.

The M6 motorway at junction 18 at Middlewich is the nearest motorway link, with the A54 connecting the town to it. The nearest airports are Liverpool John Lennon Airport and Manchester Airport.

IN FURTHER DETAILS THE ACCOMMODATION COMPRISES:-

Please note that we have not checked any of the appliances or the central heating system included in the sale (if any). All prospective purchasers should satisfy themselves on this point prior to entering the contract.

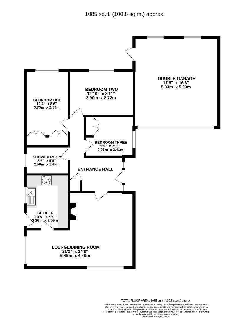
GROUND FLOOR

Entrance Hall

Lounge/Dining Room

Kitchen

Bedroom One

Bedroom Two

Bedroom Three

Shower Room

OUTSIDE

Garden

Double Garage

TENURE

Freehold. Subject to verification by Vendor's Solicitor.

SERVICES (NOT TESTED)

We believe that mains water, electricity, gas central heating and drainage are connected.

LOCAL AUTHORITY

Cheshire West And Chester Council. Council Tax - Band D.

POST CODE

CW7 4BP

POSSESSION

Vacant possession upon completion.

VIEWING

Viewing strictly by appointment through the Agents.

Floorplan


EPC

Map


Street View