LOCATION
Winnington sits on the edge of Northwich Town Centre. The area boasts local shops, petrol station, public houses, garden centre/cafe and playing fields. From the property Hartford golf course is only a short walk away alongside a great range of local schooling. Northwich is an old market town located in the heart of the Cheshire Plain. It provides an ideal commuter base being near to the A49, A556, M6 and just ten minutes from junction ten onto the M56 to Chester, North Wales and also Manchester. In terms of railway stations there are excellent connections to Chester-Manchester at Northwich and Greenbank and London-Liverpool via Hartford and Acton Bridge. The popular Waitrose Store and Marina on the river embankment opposite Freshwater View started the exciting rejuvenation programme in the town centre. Barons Quay, provides a thriving leisure and retail quarter, including multi-screen Odeon cinema, H&M and Asda superstore with multi-storey car park. Just a stones’ throw away, the Hayhurst Quay scheme created a vibrant waterfront development with a new marina providing 40 moorings, restaurants and a large Waitrose food superstore. Memorial Court, in the heart of Northwich has two swimming pools and large gym. This property is exceptionally well located for a choice of excellent local schools in both the state and private sectors. Within only a few minutes’ drive is Anderton Nature Park and Marbury Country Park, both of which support a variety of divergent habitats, with stunning aspects and offering a wonderful and popular area for walkers. Marbury Country Park sits within the Northwich Woodlands, an area of 350 hectares of parklands to explore and discover. Its network of surfaced paths provides many routes accessible to all and appeals to a variety of users including horse riders, cyclists, nature lovers and families. Anderton is also the home of the fully restored and working Anderton Boat Lift linking the Trent and Mersey Canal and the River Weaver.
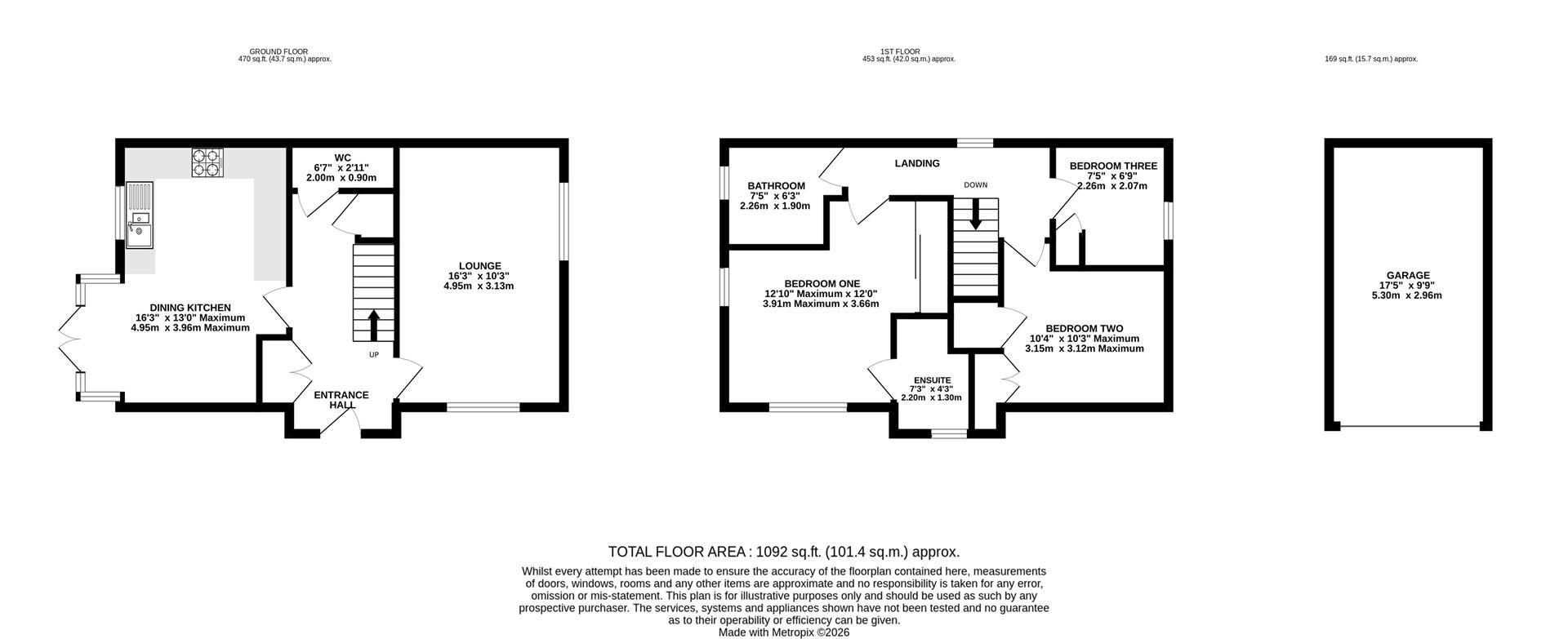
IN FURTHER DETAILS THE ACCOMMODATION COMPRISES:-
Please note that we have not checked any of the appliances or the central heating system included in the sale (if any). All prospective purchasers should satisfy themselves on this point prior to entering the contract.
Entrance Hall
Dining Kitchen
Lounge
Separate WC
FIRST FLOOR
Landing
Bedroom One
En Suite
Bedroom Two
Bedroom Three
Family Bathroom
OUTSIDE
Landscaped prviate garden
Off road parking
Garage
TENURE
Freehold. Subject to verification by Vendor's Solicitor.
SERVICES (NOT TESTED)
We believe that mains water, electricity, central heating and drains are connected.
LOCAL AUTHORITY
Cheshire West And Chester Council. Council Tax – Band D.
POST CODE
CW8 4GB
POSSESSION
Vacant possession upon completion.
VIEWING
Viewing strictly by appointment through the Agents.
AML
AML - (Anti-Money Laundering). - We are required by law and HMRC guidelines to carry out anti-money laundering checks on all those selling or buying a property. Whilst we retain responsibility for ensuring checks and any ongoing monitoring are carried out correctly, the initial checks are carried out on our behalf by Credit Safe with a link sent to you once you have agreed to instruct us in your sale or had an offer accepted on a property you wish to buy. The cost of these checks is £24 (incl. VAT) per person, which covers the cost of obtaining relevant data and any manual checks and monitoring which might be required. This fee will need to be paid by you in advance of us publishing your property (in the case of a vendor) or issuing a memorandum of sale (in the case of a buyer), and is non-refundable.































Independent Estate Agents