LOCATION
The sought-after conservation village of Christleton is ideally situated close to the historic city of Chester.
To its centre is the beautiful church of St. James and nearby the Shropshire Union Canal passes through, while the large Christleton Pond is noted for its abundance of ducks and swans.
The village has an active local community with a good range of local services including a general store, public house, cricket club and well regarded primary and secondary schools.
There are also a number of private schools within easy driving distance including the King's School, Queen's School and Abbeygate College. Easy access is available to neighbouring centres of employment via the M53 which leads to the motorway network and also the Chester Southerly By-Pass which leads to North Wales.
IN FURTHER DETAILS THE ACCOMMODATION COMPRISES:-
Please note that we have not checked any of the appliances or the central heating system included in the sale (if any). All prospective purchasers should satisfy themselves on this point prior to entering the contract.
INFORMATION
The potential buyer will own 100% of the property at 70% of the market value. Due to the discounted for sale nature of this property, certain eligibility criteria will apply to the eventual purchaser. Eligibility is assessed by the Local Authority and prospective buyers can complete and submit an eligibility form by searching for 'affordable housing' on the Local Authority website at cheshirewestandchester.gov.uk.
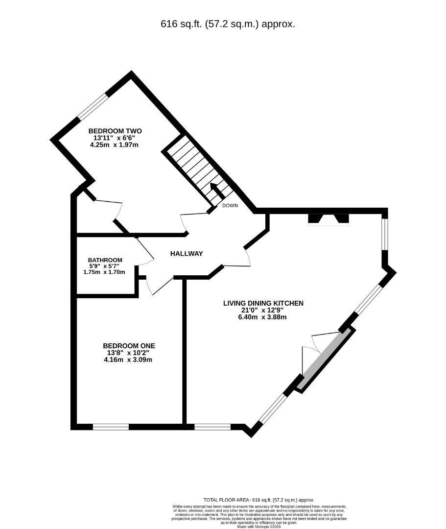
GROUND FLOOR
Entrance Hall
FIRST FLOOR
Hallway
Open Plan Living Dining Kitchen
Bedroom One
Bedroom Two
Family Bathroom
OUTSIDE
Communal Gardens
Designated Parking
TENURE
Leasehold - 125 years with 117 years remaining. Subject to verification by Vendor's Solicitor.
There is a service charge of £405.36 per quarter.
SERVICES (NOT TESTED)
We believe that mains water, electricity, gas fired central heating and drainage are connected.
LOCAL AUTHORITY
Cheshire West And Chester Council. Council Tax – Band B.
POST CODE
CH3 7DX
POSSESSION
Vacant possession upon completion.
VIEWING
Viewing strictly by appointment through the Agents.




















Independent Estate Agents