LOCATION
Mickle Trafford is a semi-rural location only 10 minute’s drive from the centre of City Centre Chester.
Mickle Trafford benefits from a primary school which has been rated 'Outstanding', with the village being particularly convenient for access to the motorway network, being only minutes away from the M53, which leads to the A55 North Wales.
The village benefits from a local shop/post office and the property also lies close to a well-used village hall.
A cycle path and Meadow Lea Cafe are within walking distance of the property. Mickle Trafford also has to offer an array of popular restaurants and public house/restaurants, and further facilities lie on hand with the property being approximately 5 minutes travelling distance away from Hoole Village with its popular number of public houses, restaurants, shops, and amenities. Leisure facilities close at hand include numerous golf courses, a driving range and rugby club.
IN FURTHER DETAILS THE ACCOMMODATION COMPRISES:-
Please note that we have not checked any of the appliances or the central heating system included in the sale (if any). All prospective purchasers should satisfy themselves on this point prior to entering the contract.
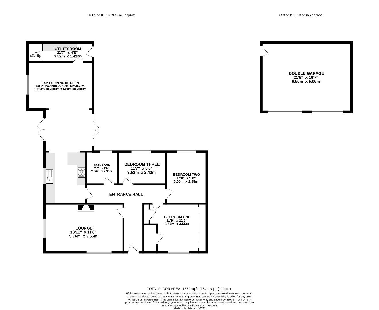
GROUND FLOOR
Entrance Hall
Lounge
Open Plan Family Breakfast Dining Kitchen
Kitchen Area
Breakfast Dining Area
Family Area
Utility Room
Separate WC
Bedroom One
En-suite
Bedroom Two
Bedroom Three
Family Bathroom
OUTSIDE
Garden
Detached Double Garage
TENURE
Freehold. Subject to verification by Vendor's Solicitor.
SERVICES (NOT TESTED)
We believe that mains water, electricity, oil-fired central heating and drainage are connected.
LOCAL AUTHORITY
Cheshire West And Chester Council.
POST CODE
CH2 4EN
POSSESSION
Vacant possession upon completion.
VIEWING
Viewing strictly by appointment through the Agents.






































Independent Estate Agents