LOCATION
The award-winning village of Tarporley, is renowned for its Historic High Street which is located approximately 12 miles from Chester and offers a superb range of amenities including fashion boutiques, art galleries, DIY, florists, hairdressers, chemist, hospital, petrol station, and other general stores. There is also a range of pleasant restaurants and public houses, which complete the thriving village. Additionally, Tarporley has the added benefit of two highly regarded Golf courses. Tarporley has its own two churches and both primary and secondary schools. There is easy access to the surrounding villages, motorway, and railway networks, which give access to the north and south of the UK.
THE BARN
A beautifully presented central village home with private courtyard garden and garage – Offered with No Onward Chain.
Set in the heart of the village, this exceptional property offers spacious accommodation arranged over two floors, combining elegant interiors with a private, low-maintenance garden — the ideal home for those seeking comfort, convenience, and character.
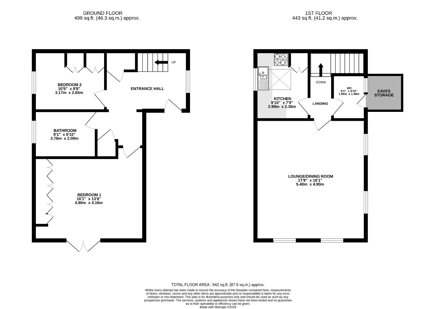
To the Ground Floor is a bright and welcoming entrance hall featuring a staircase rising to the First Floor and a useful understairs storage cupboard. The generous master bedroom has fitted wardrobes and enjoys double doors opening onto the private walled courtyard garden, creating a peaceful retreat. A well-proportioned second bedroom, also has fitted wardrobes along with a most useful dumbwaiter and provides an excellent guest or home office space. The modern family bathroom has been tastefully refitted, offering both a bath and a separate walk-in shower, designed with contemporary style and practicality in mind.
To the First Floor is the spacious lounge/dining room which is flooded with natural light from dual-aspect windows and features bespoke fitted cabinetry and a newly installed fireplace, perfect for cosy evenings and entertaining alike. The newly refitted kitchen is superbly appointed with ample storage, quality fittings, and extensive worktop space — ideal for any home cook. A convenient cloakroom completes this impressive first-floor accommodation.
Externally is a charming walled front garden with pedestrian gate leading to the front door. A side gate provides access to the private walled courtyard garden creating a delightful, low-maintenance space ideal for outdoor dining or quiet relaxation. The property also benefits from off-road parking and a garage with an electrically operated up-and-over door.
IN FURTHER DETAILS THE ACCOMMODATION COMPRISES:-
Please note that we have not checked any of the appliances or the central heating system included in the sale (if any). All prospective purchasers should satisfy themselves on this point prior to entering the contract.
GROUND FLOOR
Entrance Hall
Bedroom One
Bedroom Two
Bathroom
FIRST FLOOR
Landing
Lounge/Dining Room
Kitchen
Separate WC
OUTSIDE
Private Walled Courtyard Garden
Garage
TENURE
Freehold. Subject to verification by Vendor's Solicitor.
SERVICES (NOT TESTED)
We believe that mains water, electricity, gas central heating, and drainage are connected.
LOCAL AUTHORITY
Cheshire West And Chester Council. Council Tax – Band E.
POST CODE
CW6 0DT
POSSESSION
Vacant possession upon completion.
VIEWING
Viewing strictly by appointment through the Agents.























Independent Estate Agents