LOCATION
Holt is a picturesque border village in Wrexham County Borough, Wales, located just five miles northeast of Wrexham and set along the scenic River Dee, which forms the border with England. Rich in history, the village is home to the 13th-century Holt Castle, built by Edward I, and the beautiful red sandstone St Chad’s Church, dating back to 1395. Once a thriving medieval market town, Holt has retained its rural charm with historic architecture, quaint streets, and a peaceful atmosphere. Surrounded by countryside yet easily accessible to larger towns, Holt offers a perfect blend of heritage, character, and tranquillity. Local amenities include Ysgol Gynradd Holt Primary School and the popular Bellis Brothers Farm Shop and Garden Centre, along with everyday essentials such as a post office and village shop, all within walking distance.
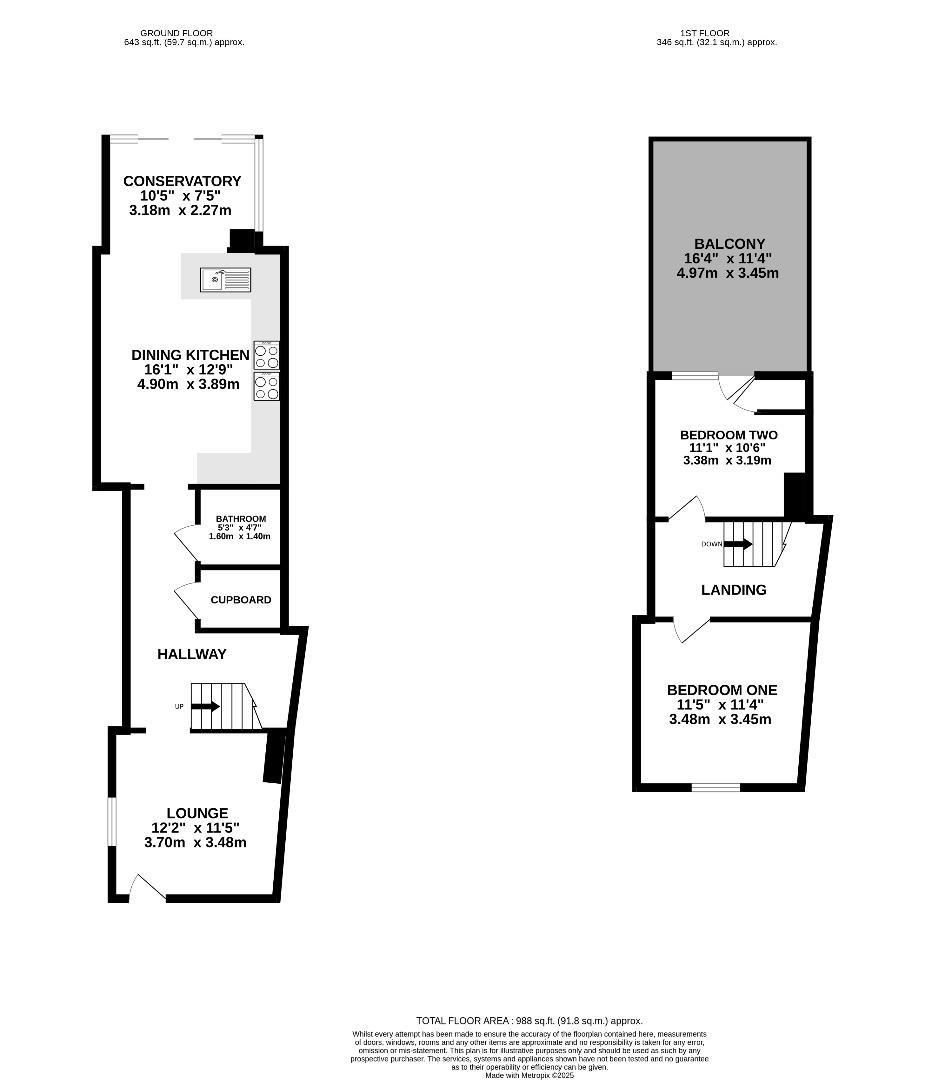
IN FURTHER DETAILS THE ACCOMMODATION COMPRISES:-
Please note that we have not checked any of the appliances or the central heating system included in the sale (if any). All prospective purchasers should satisfy themselves on this point prior to entering the contract.
GROUND FLOOR
Lounge
Hallway
Dining Kitchen
Conservatory
Bathroom
FIRST FLOOR
Landing
Bedroom One
Bedroom Two
Balcony
OUTSIDE
Garden
TENURE
Freehold. Subject to verification by Vendor's Solicitor.
SERVICES (NOT TESTED)
We believe that mains water, electricity, gas central heating and drainage are connected.
LOCAL AUTHORITY
Wrexham Borough Council. Council Tax – Band D.
POST CODE
LL13 9YH
POSSESSION
Vacant possession upon completion.
VIEWING
Viewing strictly by appointment through the Agents.


























Independent Estate Agents