LEASEHOLD
Current cost to buy freehold - £4,500 + VAT
Payable charges amount to £160 per annum
LOCATION
Cuddington, along with its neighbouring village of Sandiway both offer a range of local facilities including primary schools, a range of shops, wine store, a well-attended parish church, post office, doctor’s surgery and library. Leisure facilities include tennis courts and a bowling green and for golfing enthusiasts, courses can be found on Delamere, Sandiway and Whitegate. The area offers pleasant country walks along the Whitegate Way and Delamere Forest is easily accessible. The location is favoured by those commuting to Chester, Manchester, Warrington and Liverpool with access via the A556 and the A49. Alternatively, there are rail connections at Cuddington on the Manchester line and at Hartford on the Liverpool to Crewe line.
IN FURTHER DETAILS THE ACCOMMODATION COMPRISES:-
Please note that we have not checked any of the appliances or the central heating system included in the sale (if any). All prospective purchasers should satisfy themselves on this point prior to entering the contract.
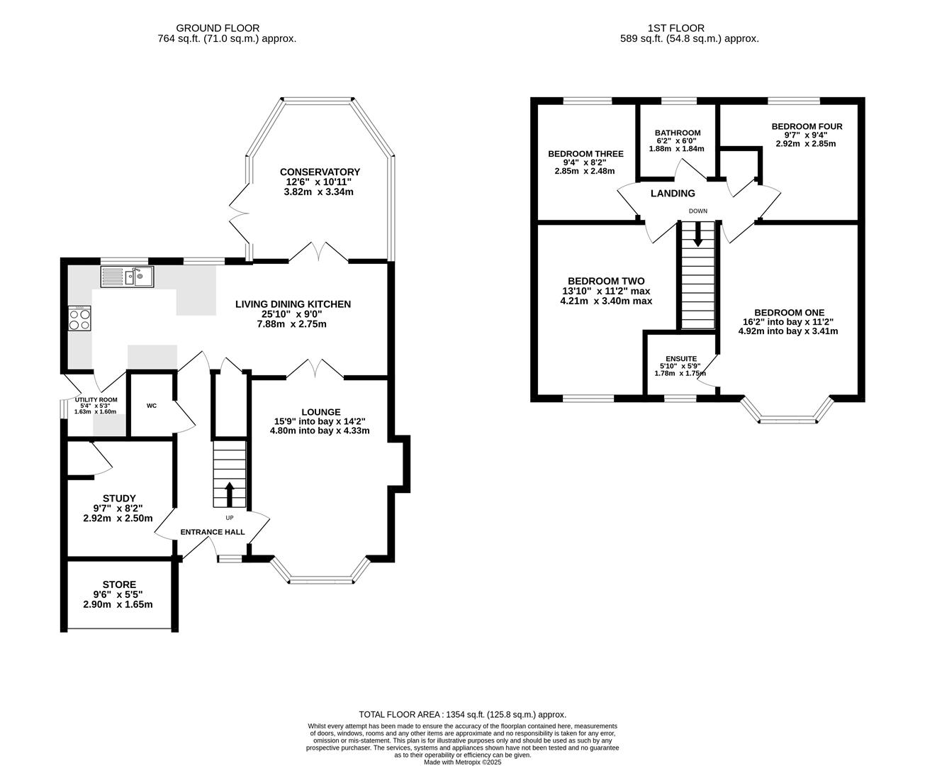
GROUND FLOOR
Entrance Hall
Study
Lounge
Living Dining Kitchen
Conservatory
Utility Room
Separate WC
FIRST FLOOR
Landing
Bedroom One
En Suite
Bedroom Two
Bedroom Three
Bedroom Four
Family Bathroom
OUTSIDE
Store
Landscaped private garden
Off road parking
TENURE
Freehold. Subject to verification by Vendor's Solicitor.
SERVICES (NOT TESTED)
We believe that mains water, electricity, central heating and drains are connected.
LOCAL AUTHORITY
Cheshire West And Chester Council. Council Tax – Band E.
POST CODE
CW8 2ZB
POSSESSION
Vacant possession upon completion.
VIEWING
Viewing strictly by appointment through the Agents.













































Independent Estate Agents