LOCATION
The Market Town of Nantwich is set beside the River Weaver with a rich history, a wide range of speciality shops and 4 supermarkets. Nantwich in Bloom in November 2015 was delighted to have once again scooped the prestigious Gold award from the Britain in Bloom competition. In Cheshire, Nantwich is second only to Chester in its wealth of historic buildings. The High Street has many of the town's finest buildings, including the Queen's Aid House and The Crown Hotel built in 1585. Four major motorways which cross Cheshire ensure fast access to the key commercial centres of Britain and are linked to Nantwich by the A500 Link Road. Manchester Airport, one of Europe's busiest and fastest developing, is within a 45-minute drive of Nantwich. Frequent trains from Crewe railway station link Cheshire to London-Euston in only 1hr 30mins. Manchester and Liverpool offer alternative big city entertainment. Internationally famous football teams, theatres and concert halls are just some of the many attractions.
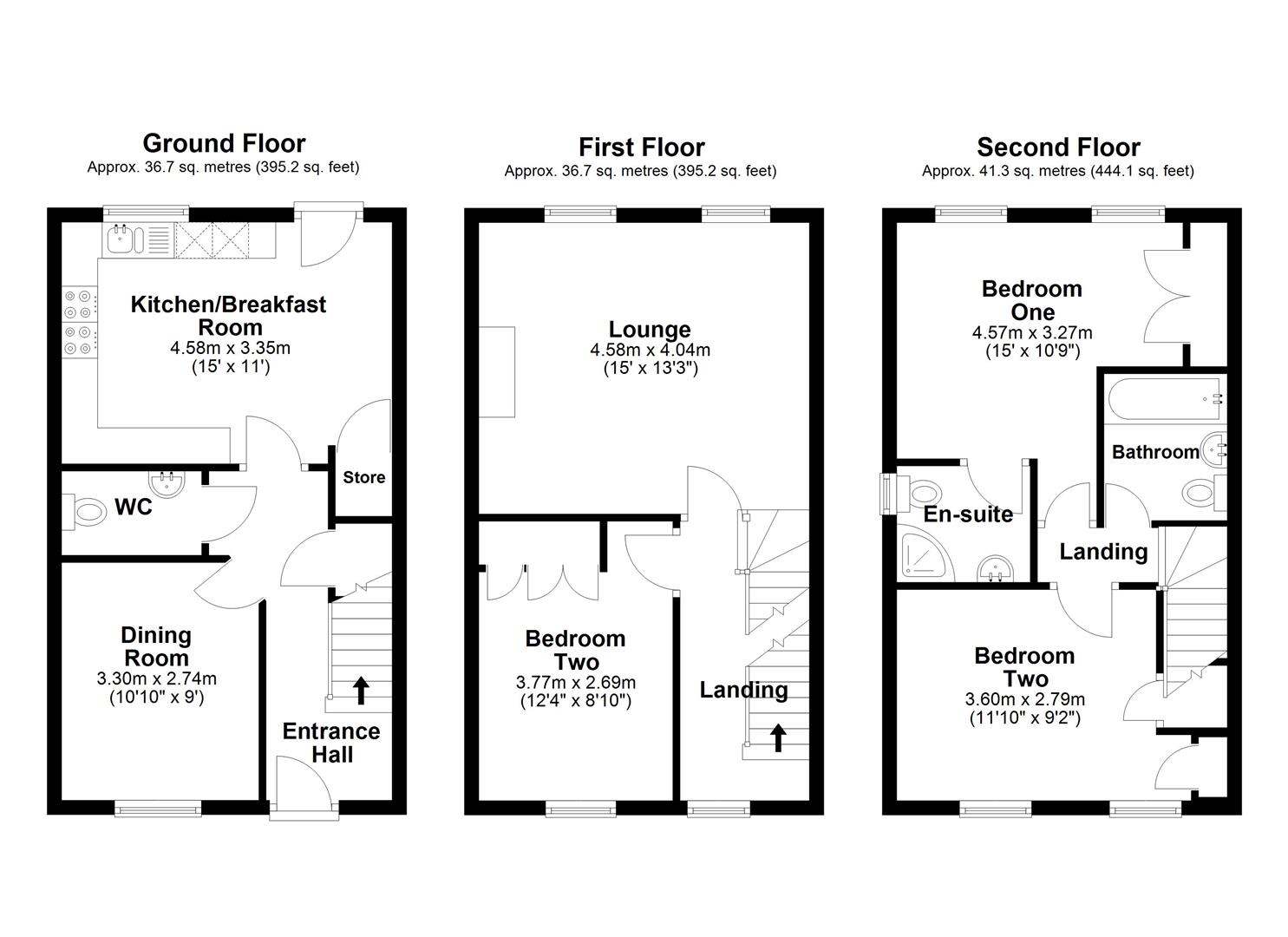
IN FURTHER DETAILS THE ACCOMMODATION COMPRISES:-
Please note that we have not checked any of the appliances or the central heating system included in the sale (if any). All prospective purchasers should satisfy themselves on this point prior to entering the contract.
GROUND FLOOR
Entrance Hall
Kitchen Breakfast Room
Dining Room
Separate WC
FIRST FLOOR
Landing
Living Room
Bedroom Two
SECOND FLOOR
Landing
Bedroom One
En Suite
Bedroom Three
Family Bathroom
OUTSIDE
Off road parking
Garage
Landscaped private garden
TENURE
Freehold. Subject to verification by Vendor's Solicitor.
SERVICES (NOT TESTED)
We believe that mains water, electricity, central heating and drains are connected.
LOCAL AUTHORITY
Cheshire East . Council Tax – Band D.
POST CODE
CW5 7NF
POSSESSION
Vacant possession upon completion.

































Independent Estate Agents