LOCATION
Little Leigh is a beautiful village nestled in the Cheshire countryside and is tucked away from the bustle of the busier Towns and Villages. It is ideal for those who commute as despite its rural location, it retains superb access to the A49, M56 and M6 motorways and is very convenient for Manchester and Liverpool International Airports. Little Leigh has a well-regarded Primary School and there are school facilities for older children in nearby Hartford Northwich or Weaverham.
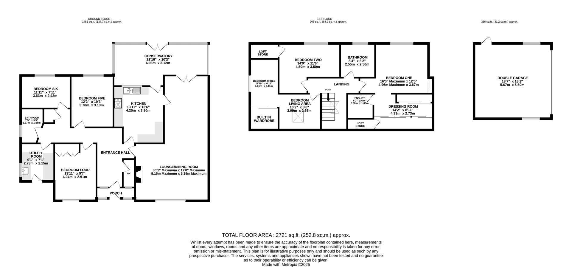
IN FURTHER DETAILS THE ACCOMMODATION COMPRISES:-
Please note that we have not checked any of the appliances or the central heating system included in the sale (if any). All prospective purchasers should satisfy themselves on this point prior to entering the contract.
GROUND FLOOR
Porch
Entrance Hall
Kitchen
Conservatory
Lounge Dining Room
Seperate WC
Utility Room
Bedroom Four
Bedroom Five
Bedroom Six
Bathroom
FIRST FLOOR
Landing
Bedroom One
Dressing Room
En Suite
Storage
Bedroom Two
Storage
Bedroom Three
Built in Wardrobe
Bedroom Living Area
OUTSIDE
Double Garage
Off road parking
Landscaped private gardens
TENURE
Freehold. Subject to verification by Vendor's Solicitor.
SERVICES (NOT TESTED)
We believe that mains water, electricity, central heating and drains are connected.
LOCAL AUTHORITY
Cheshire East. Council Tax – Band G.
POST CODE
CW8 4RR
POSSESSION
Vacant possession upon completion.























































Independent Estate Agents